Il mio angolo di paradiso, Cortona, Arezzo - Toscana

Appartamento panoramico con piscina condominiale all'interno di un affascinante borgo in vendita a Cortona, Arezzo. Raggiungibile attraverso un caratteristico viale di cipressi, il borgo, composto da 7 casolari ristrutturati nel rispetto dello stile tipico toscano, ospita questo appartamento che si sviluppa su due livelli, per un totale di 105 metri quadrati, e offre due accoglienti camere da letto. Inoltre, vanta un giardino privato dove potersi rilassare e godere della vista mozzafiato dei dintorni. L’interno conserva tutto il fascino dell'architettura tradizionale toscana, con pavimenti e mezzane in cotto e travi in castagno. La tradizione è qui accompagnata da moderne comodità, grazie all'introduzione di avanzate tecnologie. Tra queste, spiccano il sistema di irrigazione automatico dei giardini, ideale per mantenere il verde sempre rigoglioso con minimo sforzo. La presenza di una piscina condominiale offre agli abitanti l'opportunità di rinfrescarsi e godere del clima mediterraneo in totale relax.La connessione ad Internet senza cavi garantisce un accesso veloce e affidabile alla rete, mentre la TV satellitare permette di rimanere aggiornati con i programmi preferiti. Infine, il servizio di manutenzione condominiale assicura la cura e il mantenimento degli spazi comuni, garantendo una vita serena e priva di preoccupazioni. Questo appartamento è l'incarnazione perfetta dell'armonia tra tradizione e modernità, perché offre un ambiente raffinato e confortevole immerso nella bellezza della campagna toscana.

Prezzo: 360.000 Euro

IMMOBILE Rif: COR2919

Dove: Cortona, Provincia: Arezzo, Regione: Toscana

Tipologia: appartamento di 105 mq su due livelli, con giardino privato e piscina condominiale

Anno di costruzione: 2005

Condizioni: ottime, abitabile subito

Terreno/Giardino: giardino privato di circa 150 mq e area condominiale

Piscina: 20 x 8 m, in comune con gli altri appartamenti

Posto auto: scoperti

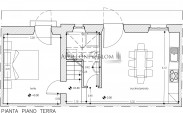
Disposizione:
Piano Terra: sala da pranzo con angolo cottura, camera, bagno
Piano Primo: soggiorno con camino, camera bagno

Distanza dai servizi: Cortona km 14, Foiano della Chiana km 6

Distanza da aeroporti principali: Perugia 66 km, Firenze 120 km, Roma 216 km

Strada bianca: 350 m

Utenze:
Rete telefonica fissa: disponibile
Internet: fibra ottica
Riscaldamento: GPL e pompa d’aria calda
Acqua: l'acqua sanitaria e per l'innaffiamento è prodotta da 4 pozzi e da un impianto di accumulo e di trattamento
Energia elettrica: attiva
Smaltimento acque nere: fossa Imhof
Arredamento incluso nella trattativa
Aria condizionata
Cancello elettrico

Immobile intestato a persona fisica
La posizione, per la privacy, è approssimativa
Tutte le misure riportate sono approssimative

Classe Energetica: G

MAGGIORI INFORMAZIONI

Messaggio inoltrato con successo!
Grazie per averci contattato.

Proprietà simili

Prezzo: 1.890.000 Euro

Borgo con piscina e terreno a...

Complesso di quattro prestigiosi casali in pietra con nove appartamenti, ristorante e grande spazio esterno in vendita a...