Casa Cerboli sul mare, Scarlino, Grosseto – Toscana

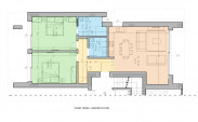
Direttamente sul porticciolo turistico, con vista mare, in residence di lusso con spiaggia e piscina privata, residenze con 2 o 3 camere in vendita sulla costa Toscana, Grosseto. Davanti all’Isola d’Elba, con il borgo medievale di Scarlino alle spalle che domina uno dei golfi più interessanti della costa Toscana con baie naturali, lunghissime spiagge di sabbia fina, un mare incontaminato Bandiera Blu, una posizione strategica per scoprire le isole dell’Arcipelago Toscano e il Mar Tirreno. All’interno della Marina, un porticciolo attrezzato per 950 posti barca, servizio security e portineria, bar, negozi e ristoranti, un club ad uso esclusivo con piscina e spiaggia privata. Il residence include residenze in stile moderno e minimali in quadrifamiliari dotate di impianti autonomi, aria condizionata, ascensore interno, porte a vetrata scorrevoli, impianti di nuova generazione e la possibilità di scelta fra piano terra con terrazza e giardino, o tipologia al piano primo con balconi e terrazza panoramica sul tetto. Tutte le unità vantano una vista meravigliosa e un tramonto sul mare che ogni giorno regala colori spettacolari. Al piano interrato, sono disponibili garage e cantine/depositi acquistabili separatamente. Casa Cerboli è in consegna chiavi in mano, pronta da abitare, un atmosfera unica ed elegante, comforts di lusso e servizi impeccabili dal boat charter alla gestione di affitti brevi. La cittadina di Follonica si trova a 2,5 km, il borgo di Scarlino a 9 km, la spiaggia di Punta Ala a 10 km e il borgo marittimo di Castiglione della Pescaia a soli 15 km.

Disponibili villa unifamiliari e bifamiliare con 3, 4 o 5 camere, informazioni in agenzia.

Prezzo: 775.000 Euro