La Villa Storica, Anghiari, Arezzo - Toscana

Affascinante villa storica con parco, terreno, campo da tennis e due ulteriori villette in vendita nel centro storico di Anghiari, Arezzo. Si tratta di una proprietà di estremo fascino, ricca di storia e caratteristiche architettoniche uniche, costruita da un lord inglese agli inizi del '900, unisce lo stile liberty con quello british caratterizzato da finestre a golfo, da focolari in pietra intarsiata, da pareti in pietra a vista tipica dell'architettura toscana. Il parco è estremamente curato nel dettaglio adornato con piante secolari e un campo da tennis. La villa, trovandosi in posizione molto centrale, è collegata al centro storico del borgo tramite un piccolo cancello. Oltre alla villa che si sviluppa su quattro livelli, due villette una adiacente all'altra ma indipendenti, che si sviluppano su due piani costituite da due appartamenti. Incluso un terreno di circa 1,3 in parte a parco in parte a terreno agricolo con ulivi e vitigni. L'immobile, ristrutturato negli anni '80 ha mantenuto invariate le caratteristiche originali e la suddivisione degli spazi interni molto scenografici. Ideale come residenza privata da vivere con famiglia e amici, perfetta come accoglienza per turisti e viaggiatori di tutto il mondo che ogni anno scelgono questi luoghi per le loro vacanze.

Prezzo: 2.500.000 Euro

IMMOBILE Rif: ARZ2299

Dove: Anghiari, Provincia: Arezzo, Regione: Toscana.

Tipologia: villa di circa 490mq utili, con ulteriori due villette in fabbricato distaccato di circa, rispettivamente, 123 mq utili e 90 mq utili, più magazzini, terreno e campo da tennis

Condizioni: Ottime, ristrutturata negli anni ‘80 mantenendo la struttura originaria

Terreno: 1,3 ettari, in parte utilizzato a parco e in parte con oliveto e vigneto

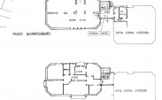
Disposizione:
Villa padronale - circa 490 mq utili
Piano seminterrato: 2 cantine, legnaia, locale di sgombero
Piano rialzato: ingresso, disimpegno, soggiorno, sala pranzo, cucina, studio, bagno
Piano primo: 3 camere matrimoniali,disimpegno, ripostiglio, bagno
Piano sottotetto: 5 locali soffitta

Villetta 1 - appartamento di circa 123 mq + magazzini di circa 120 mq
Piano seminterrato: magazzini
Piano secondo: cucina, bagno, 5 camere

Villetta 2 - appartamento di circa 90 mq utili + magazzini di circa 90 mq
Piano terra: 2 cantine, locale centrale termica, ipostiglio
Piano primo: soggiorno, sala da pranzo, cucina, 2 camere, bagno

Distanza dai servizi: centro storico

Distanza da aeroporti principali: Perugia 74km, Firenze 126km, Pisa 186km

Utenze:
Rete telefonica fissa: attiva
Internet: disponibile, fibra
Riscaldamento: metano
Acqua: rete idrica comunale e pozzo privato
Energia elettrica: attiva

Fogne: Imoff e rete comunale
Sistema di allarme e video sorveglianza
Aria Condizionata

Immobile intestato a persona privata
La posizione, per privacy, è approssimativa

Classe Energetica: G ed E

Attenzione: la posizione, per privacy, è approssimativa.

MAGGIORI INFORMAZIONI

Messaggio inoltrato con successo!
Grazie per averci contattato.

Proprietà simili

Prezzo: 3.500.000 Euro

Prestigiosa Villa tra Tradizio...

Villa di fine 800 in vendita con terreno e due piscine a Cavriglia, Arezzo.
Prezzo: 3.200.000 Euro

Antica Villa Il Pino con pisci...

In posizione ideale a sud di Firenze, fattoria di 11 ettari con villa di campagna del 1700, piscina, oliveti e vigneti i...
Prezzo: 730.000 Euro

Villa Naturans, Acquapendente,...

Villa in stile liberty 'primi del'900 in vendita ad Acquapendente, in posizione panoramica, su quattro livelli, circa mq...