VENDUTO `25

La Contrada cielo terra in centro con giardino, Sarteano – Toscana

Cielo terra in centro storico con giardino, balconi, ristrutturato con aria condizionata, due unità e un negozio in vendita a Sarteano, Siena. La Contrada è un tipico immobile cielo terra su più livelli su uno dei vicoli più famosi del centro storico di Sarteano. Completamente ristrutturato nel 2007 e nel 2018, si compone da due luminose unità abitative, con una e due camere da letto, più un negozio al piano strada con magazzini e un bagno. Gli interni presentano un elegante stile rustico e conservano le caratteristiche toscane con pareti in pietra a vista e alti soffitti a travi in legno. Ogni stanza ha caratteristiche diverse, con pavimenti in ceramica originali o in parquet decorati, tutte includono l'impianto di aria condizionata. Un appartamento dispone di due classici balconi e la seconda unità ha accesso diretto a un romantico giardino privato sul retro, fantastico per mangiare all'aperto. In posizione centrale, perfetta per vacanza, per ospitare turisti o da vivere tutto l'anno, La Contrada è pronta da abitare, in una delle aree più incantevoli della Toscana, vicino a siti storici e archeologici, sorgenti termali e le migliori cantine di vini pregiati.

Prezzo su richiesta

IMMOBILE Rif: SAR2770

Dove: Sarteano, Provincia: Siena, Regione: Toscana

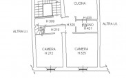
Tipologia: cielo terra di circa 170 mq diviso in due appartamenti + un negozio al piano strada di circa 78 mq

Giardino: privato e recintato di 100 mq con stanza deposito

Anno di costruzione: 1700

Anno di ristrutturazione: in più fasi appartamento piano terra nel 2007, appartamento primo piano nel 2018, magazzino e bagno al piano terra nel 2019

Condizioni: buone

Disposizione:

Piano Terra: negozio di 78 mq dotato di doppio ingresso con 1 bagno, disimpegno e due locali magazzino;

Piano Primo: appartamento A – 91 mq - con cucina, ampio soggiorno con piccolo balconcino e stufa, camera matrimoniale con balconcino, disimpegno e bagno;

Piano Secondo: appartamento B – 79 mq - con soggiorno-cucina, accesso al giardino privato, 2 camere e 1 bagno

Piano Terzo: 2 locali ad uso soffitta accessibili dall’appartamento al secondo piano

Distanza dai servizi: in centro storico

Distanza da aeroporti principali: Perugia 66 km, Firenze 149 km, Roma 185 km

Utenze:
Rete telefonica fissa: attivo
Internet/Wi-Fi: disponibile
Riscaldamento: metano, stufa e camino a legna
Acqua: Rete idrica comunale
Energia elettrica: attiva

Aria condizionata

Immobile intestato a persona fisica
La posizione, per privacy, è approssimativa
Tutte le misure riportate sono approssimative

Classe Energetica: G

Attenzione: la posizione, per privacy, è approssimativa.

MAGGIORI INFORMAZIONI

Messaggio inoltrato con successo!
Grazie per averci contattato.

Proprietà simili

Prezzo: 265.000 Euro

Appartamento Il Balconcino in ...

Appartamento signorile del 1600 con soffitti affrescati e terrazzo in vendita nel centro storico di Cetona, Siena.