Casale La Colombaia, Arezzo – Toscana
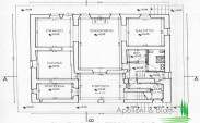
Stone farmhouse in its raw state for sale near Arezzo, Tuscany. The property, situated in the heart of Tuscany, between Florence, Siena and Arezzo, also comes with 25 hectares (2.8 acres) kept as an olive grove and park and surrounded by woodland. The property lies near a small lake. The splendid “Leopoldina” built farmhouse is partially restored and has breathtaking views of the Tuscan hills. The main house is on three levels. On the ground floor we find a porch, a spacious living room, a dining room, a sitting room, kitchen, pantry, closet and bathroom. On the first floor there is a reception room, a large living room with arches, 4 bedrooms, a study and two bathrooms. On the second floor we find a habitable tower. In addition, there is planning permission for an agricultural outbuilding of approx. 65 sqm, an underground garage of approx. 85 sqm and a swimming pool. The farmhouse, although near to local services, enjoys great privacy. The property is ideal either as a first or second home, but also could provide good rental income as a holiday let.
 
 

