Building Land The Barn, Castiglione del Lago - Umbria

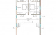
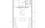
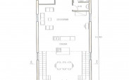
Building site with country house project in energy class A and panoramic views of Lake Chiusi and the surrounding hills. The project involves the construction of an independent farmhouse of approx. 190 sqm on two levels. The exterior will have the rustic characteristic of the Umbrian and Tuscan farmhouses, with stone and brick facades and interior ceilings with exposed wooden beams. The project envisages energy class A and with low maintenance costs. You can choose between two variants, the first includes 2 bedrooms on the first floor, the second one includes 3 bedrooms, with one on the ground floor. The ground floor has been designed as a large and bright open-space with kitchen, living room and bathroom. Two symmetrical stairs lead to the first floor, a hallway with balcony overlooking the entrance, a study with a large desk overlooking the sunset and two bedrooms each with en suite bathroom. Outside 4500 sqm of garden. The swimming pool is not included in the sale price but can be requested. The sale price includes the turnkey project.

Price: 420,000 Euro